CARTPOLAND Bastion CP A_reader TX-200x2_platforma
.
Kahepoolne värav allalastavate hoobadega
- .Valmistatud AISI 304 harjatud roostevabast terasest
- Kukkuvad paneelivastased relvad
- LED indikaator – piktogrammid
- LED indikaator – piktogrammid
- Kahesuunaline töö; sisenemine-väljapääs
- Virtu helisignaal
- .Pöörduskontrolli ühendus
- Foto juhtühendus
- Juhtimisühendus
- RcP ühendus
- .Soojendi, kui värav on paigaldatud õue
- Kaamera ühendus
- Kaamera ühendus
- Vea signaal
- .Pingevarundus elektrikatkestuse korral – puhvertoiteallikas
- Aku 7 V
- Häiresignaal -ALARM
- .Ülemineku tuvastamine
- Kalibreerimine - magnetiline
- Juhtpaneel
- Juhtmeta kaugjuhtimispult
- Temperatuur. Töötemperatuur; – 25 kuni + 40 C
- IP 42; 65
- terase valikud; AISI 304; AISI 316; OCINK; TÄIENDATUD LAKKIMINE
<.div class="row">
Mõõtmed
Tehniline kirjeldus
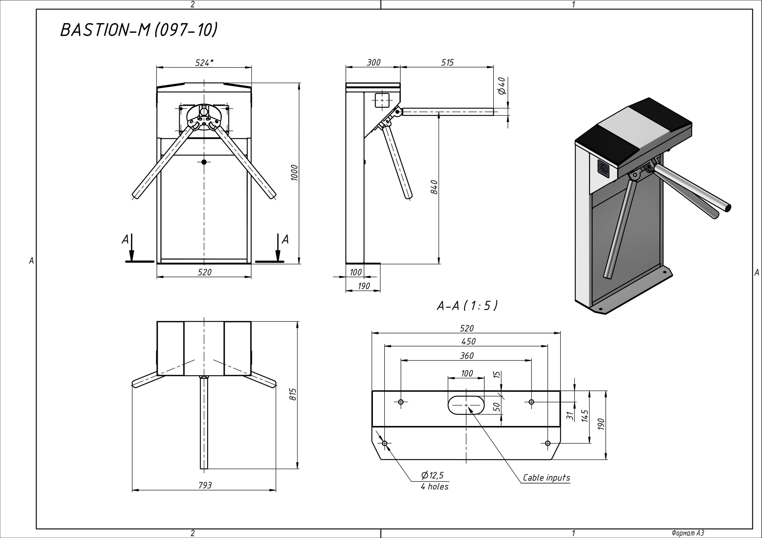
| Mudel | .Bastion – M | Seadme mõõdud (laius x pikkus x laius), mm | 1000 x 793 x 815 | .Vaba juurdepääsu läbilaskevõime, inimest/min | 60 |
| Ühe juurdepääsuga läbilaskevõime, inimest/min | ||
| Ühe juurdepääsuga läbilaskevõime, inimest/min | ||
| Ülemineku laius, mm | 600 | mehhanism | .Mootoriga (Triservo-M) |
| Sulgemismehhanism | Kaks elektromehaanilist lukku (eraldi lukustussüsteem) | |
| Sulgemismehhanism | Kaks elektromehaanilist lukku | |
| Üleliigne režiim (voolukatkestuse korral) | Elektrikatkestuse korral langeb raam alla | |
| Käe langetamise funktsioon | Käe langetamise funktsiooni saab aktiveerida ainult siis, kui toide on sisse lülitatud. | |
| Käepideme langetamise funktsioon aktiveeritakse elektrikatkestuse korral automaatselt | ||
| Ebaõnnestunud turvarežiim | + (käsi alla) | |
| Standardne juhtum | Stantsitud AISI 304 roostevaba teras | |
| Saadaval olevad kere valikud | Harjatud AISI 316 roostevaba teras | Poleeritud AISI 316 roostevaba teras | Pulbervärvimine (soovi korral mis tahes RAL värviga) |
| Toitepinge | AC (100-240) V, 50/60 Hz; DC 12 V | |
| Maksimaalne energiatarve | 55 W | |
| Ümmargune kaitseklass | IP 41 – 54* | |
| MCBF (keskmine tsüklite arv ilma tõrgeteta) | 1500000 | |
| .Märkused | * Esimene väärtus on standardväärtus, teised on valikulised |





