Renomatic/Hormann garažo vartai 2500x2250mm (su pavara ir vikšre) – M formos briaunotas Woodgrain
Tikslas
Sukomplektuoti varstomi garažo vartai, kurių matmenys (plotis x aukštis) nuo 2500 215 2250 mm. Galima montuoti garaže su plokščiomis lubomis (tokiomis, kurios nenukrenta ir neturi papildomų santvarų, išlinkimų ar kitų kliūčių).
- Mažiausias aukštis nuo garažo grindų iki lubų yra 2365 mm.
- Min. Rėmų plotis 9 cm iš abiejų pusių.
Į rinkinį įeina:
- Garažo vartai, kurių dydis 2500 mm x 2250 mm (spalvą nurodykite užsakyme)
- Vartų jungiamieji elementai
- Bėgis su Kevlar-poliamido dirželiu
- ProLift 500-2 pavara su įmontuotu 433RC radijo imtuvu
- 2 vnt. Hormann RSC2 433RC nuotolinio valdymo pultai
PASTABA! Nuotraukoje rodoma spalva gali skirtis nuo tikrosios spalvos, priklausomai nuo individualių ekrano nustatymų (tai nėra priežastis skųstis). Norėdami patikrinti tikslų atspalvį, apsilankykite mūsų filialuose, kuriuose yra gamintojo pavyzdžiai.
Aprašymas
Pilnai įrengti garsios vokiečių firmos Hormann garažo vartai, modelis Renomatic. Pilni segmentai, kurių storis 42 mm, garantuoja aukštą šilumos izoliaciją, gerą stabilumą ir tylų vartų veikimą. Visi vartų paviršiai viduje yra padengti aukštos kokybės RAL 9002 (baltai pilka) danga, kuri garantuoja efektyvią apsaugą nuo korozijos.
- Pristatymas tiesiai klientui – 300 PLN grynasis
- Pristatymas į pasirinktą ELTROX filialą – NEMOKAMAS
- Garažo vartų užsakymo įvykdymo laikas: 4-6 savaitės
Hormann Prolift 500-2 pavara su įtraukta bėgiu
- Radijo dažnis 433 MHz RC
- Atidarymo greitis apie 13 cm/s
- Integruotas apšvietimas pavaros korpuse
- Du 2 kanalų nuotolinio valdymo pultai su radijo dažniu 433 RC (ECOSTAR) su chromuotu pakabuku raktų pakabukui
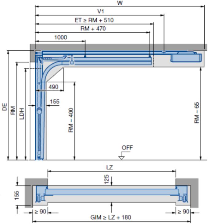
Montavimo matmenys
DĖMESIO!
- Kiekvieni garažo vartai gaminami pagal užsakymą, todėl prekės grąžinti nėra galimybės.
Papildoma informacija
| Svoris | 100,0000 kg |
|---|

















